Torre de la Horadada:
Entdecken Sie dieses exklusive Obergeschoss mit zwei Schlafzimmern und zwei Badezimmern im neuen Wohnprojekt Marquesado de Molins, gelegen in Torre d
Objekt-Nr.: MDM-O19




























Preis:
339.000 €
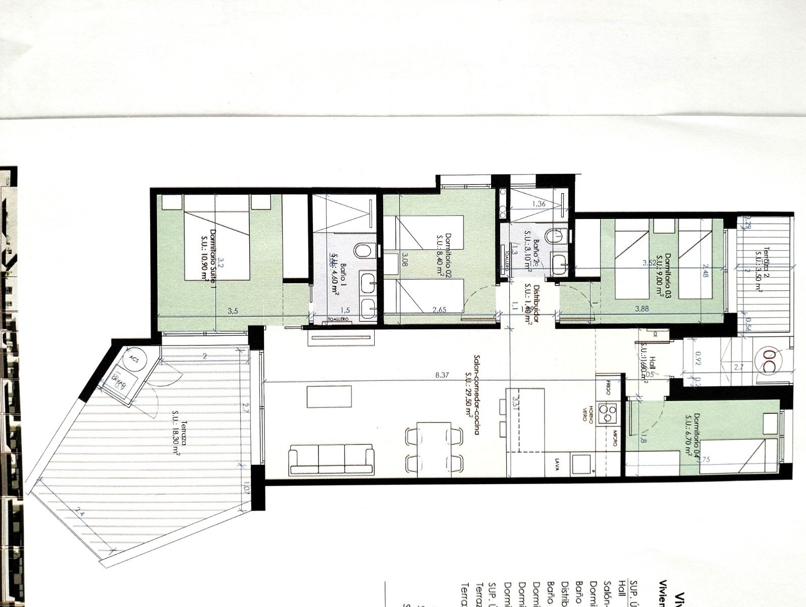
Wohnfläche ca.:
46 m²
Entdecken Sie dieses exklusive Obergeschoss mit zwei Schlafzimmern und zwei Badezimmern im neuen Wohnprojekt Marquesado de Molins, gelegen in Torre de la Horadada, nur wenige Schritte vom Meer entfernt. Eine Immobilie, die Komfort, Stil und eine privilegierte Lage bietet.
Eigenschaften der Immobilie:
Gebaute Fläche: 46,33 m²Terrasse: 7,84 m², perfekt, um das mediterrane Klima zu genießen.Parkplatz inklusive: Nr. 19, mit einer Fläche von 15,81 m².Gesamtfläche: 109,98 m²Solarium: 40 m².
Ein Ort zum Genießen:
Diese Wohnanlage bietet moderne Einrichtungen wie Paddle-Tennisplätze und großzügige Gemeinschaftsbereiche, die die Ruhe des Lebens am Meer ergänzen. Mit einer geplanten Fertigstellung in 24 Monaten bietet diese Immobilie Zeit, um jedes Detail zu planen und anzupassen.
Standort: Avda. del Mare Nostrum mit C/ Dalia, Torre de la Horadada, Alicante.
Nutzen Sie die Gelegenheit, ein exklusives Zuhause in einer einzigartigen Umgebung zu genießen. Kontaktieren Sie uns für weitere Informationen und stellen Sie sich Ihr Leben im Marquesado de Molins vor.
- Intercom
- Solarium
Wohnungstyp: Etagenwohnung
Anzahl Schlafzimmer: 2
Anzahl Badezimmer: 2
Terrasse: 1
Pool: ja
Fahrstuhl: ja
Anzahl der Parkflächen: 1 x Garage
Das könnte Ihnen auch gefallen

Herman Louwerse Europa-Makler
Herr Herman Louwerse
Firnhaberstrasse11
48529 Nordhorn
Telefon: +49 5921 784430
Mobil: +49 157 75351519
Fax: +49 5921 784431
Torre de la Horadada








































